About Us
The Official Web Site of the State of South Carolina
Please visit SCEMD website for winter weather updates.
Hurricane Helene overview information here | SCOR Disaster Case Management Services: 1-803-898-2511
Applications open September 1, 2025 - February 13, 2026 for Hurricane Helene CDBG-DR Mitigation Set-Aside Program here.
Applications open January 1, 2026 - March 31, 2026 for HUD CDBG-MIT Voluntary Buyouts here.

The South Carolina Office of Resilience is administering a Community Development Block Grant – Disaster Recovery program, a federal grant from the U.S. Department of Housing and Urban Development. Additional information about SCOR's CDBG-DR grant can be found in the HUD-approved Action Plan here.
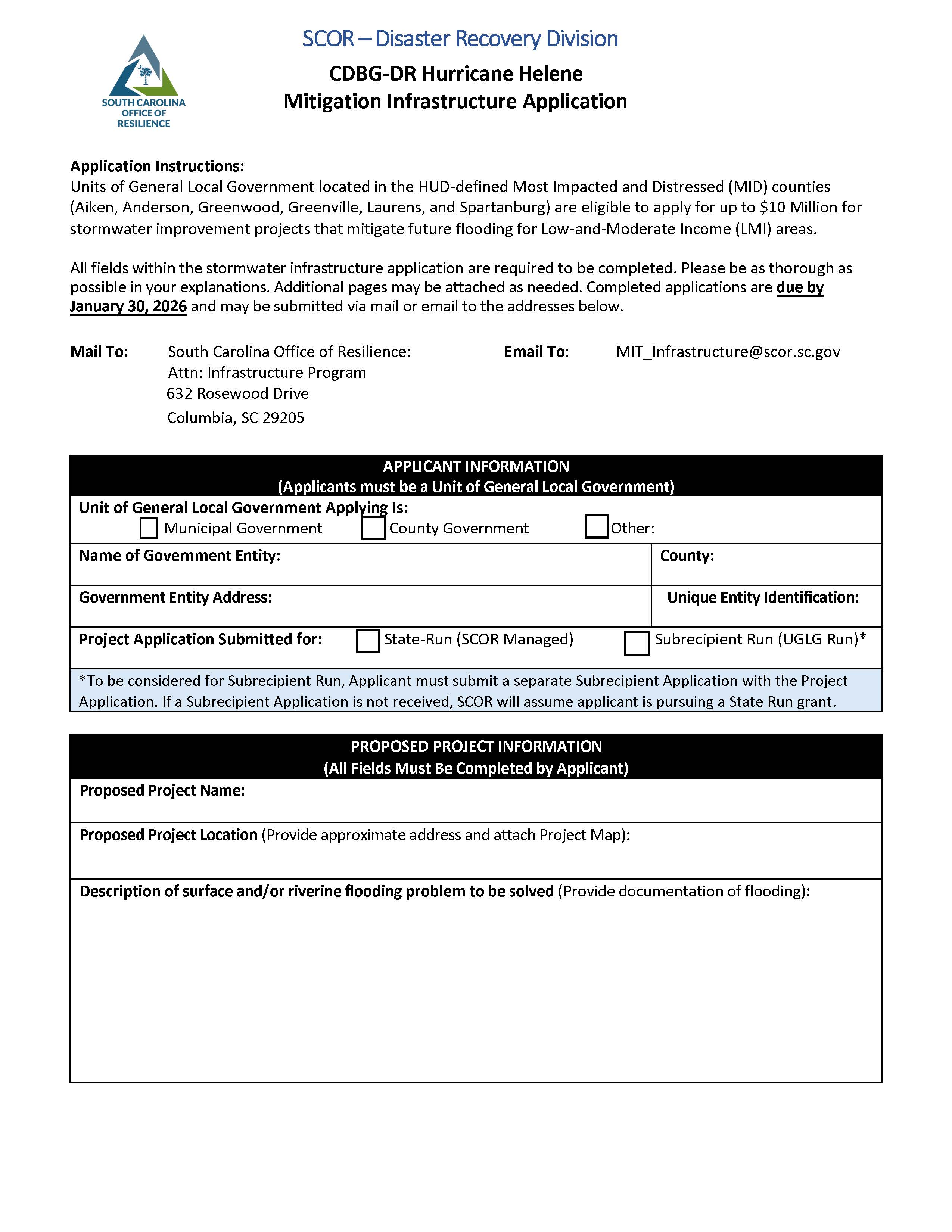
$19.6 million of this grant is set aside for mitigation projects which will focus funding on reducing potential riverine and surface flood impacts in the U.S. Department of Housing and Urban Development (HUD)- defined “most impacted and distressed” (MID) areas.
Per HUD's limitations, state agencies and cities, towns, counties, and councils of government in the following MID counties may apply for mitigation funds: Aiken, Anderson, Greenville, Greenwood, Laurens, & Spartanburg.
Mitigation activities are defined as those that increase resilience and reduce or eliminate the long-term risk of loss of life, injury, damage to and loss of property, and suffering and hardship, by lessening the impact of future disasters. The CDBG-DR Mitigation set aside has 4 programs, and application forms will be linked below on September 1, 2025.
Infrastructure: SCOR will provide funding to units of general local governments in the HUD identified MID areas for the development and implementation of stormwater infrastructure projects mitigate future flood damage associated with riverine and surface flooding. Projects will be prioritized for funding based on the percent of low- and moderate-income residents served, the project’s benefit-cost ratio, and the quality & quantity of flood risk reduction. Application can be downloaded here.
Voluntary Buyouts: SCOR will provide funding to units of local governments in the HUD-identified MID areas for voluntary buyouts of residential property. Buyouts, in and of themselves, are mitigation measures that return parcels of land for uses compatible with open space, recreational, natural floodplain functions, wetlands management practices, or ecosystem restoration. Moving citizens from harm’s way reduces the loss of life and property damage. Application can be downloaded here.
Matching Funds: SCOR has designated funds to match federally-funded mitigation grant programs to include the Hazard Mitigation Grant Program (HMGP), Flood Mitigation Assistance (FMA) Program, and any other FEMA federal grant opportunities that focus on flood reduction. Activities may include, but are not limited to, buyouts, structural home elevation, localized flood risk reduction, and infrastructure retrofit. Application can be downloaded here.
*SCOR will provide an opportunity for applicants to request to be a Subrecipient for Infrastructure and Plans & Studies projects only. Applicant must complete a Subrecipient Application. SCOR will review all applications and evaluate the applicant's capacity to be a Subrecipient. Application can be downloaded here.
Program Overview Slides:

Phleisha Lewis, Mitigation Director
Shakota Johnson, Mitigation Program Manager
Plans & Studies and Match
Nancy Miramonti, Buyout Program Manager
Pamela Kendrick, Infrastructure Manager